Zapytanie cenowe dot. przygotowania dokumentacji projektowej prac remontowych umożliwiających przeprowadzenie robót budowlanych w lokalu budynku przy al. Wojska Polskiego 63 w Szczecinie.
L. dz. 00381/ 2025
ZAPYTANIE OFERTOWE
Zachodniopomorski Oddział Okręgowy Polskiego Czerwonego Krzyża w Szczecinie zwraca się z zapytaniem cenowym dotyczącym przygotowania dokumentacji projektowej prac remontowych umożliwiających przeprowadzenie robót budowlanych w lokalu budynku przy al. Wojska Polskiego 63 w Szczecinie.
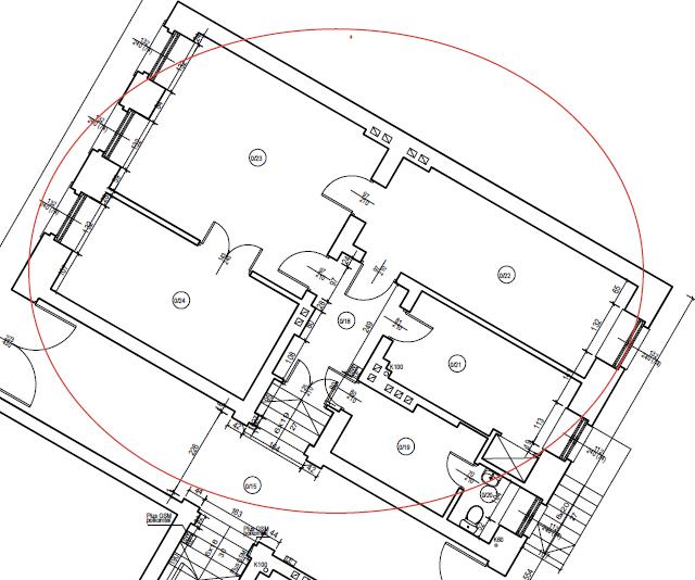
Planowany remont dotyczy pomieszczeń na parterze budynku PCK oznaczonych w rzucie architektonicznym numerami od 0/18 do 0/24.

Projekt powinien zostać przygotowany zgodnie z Rozporządzeniem Ministra Pracy i Polityki Społecznej z dnia 13.10.2015 r. w sprawie wymagań lokalowych i sanitarnych, jakie musi spełniać lokal, w którym ma być prowadzona placówka wsparcia dziennego.
Liczymy na indywidualne potraktowanie cenowe naszej organizacji, która posiada statut pożytku publicznego i powołana została do „...zapobiegania cierpieniom ludzkim i ich łagodzenia we wszystkich okolicznościach i w każdym czasie, przy zachowaniu bezstronności oraz bez jakiejkolwiek dyskryminacji, zwłaszcza z powodu narodowości, rasy, płci, religii lub poglądów politycznych...” /Statut PCK/.
Za odpowiedź na nasze zapytanie z góry serdecznie dziękujemy i oczekujemy na nie do dnia 30.05.2025 r.
W sprawie uzyskania większej ilości szczegółów zapraszamy do kontaktu z biurem ZOO PCK w Szczecinie, tel. 91/433-73-02.
Przeglądasz właśnie stronę przefiltrowaną przez zawartość z oddziału Cała PolskaJeśli chcesz oglądać zawartość z Cała Polskakliknij przycisk
